ALRO taukovaunu 2:lla makuupaikalla (sis. wc + suihku + keittiö)

0,00 (Veroton hinta 0,00)

tai alk.
Ei hintaa € / kk

PYYDÄ TARJOUS!
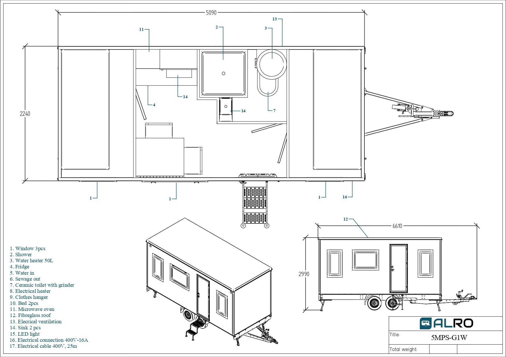
Alro tauko- ja makuuvaunu kahdelle, jossa ruokailutila, wc ja kaksi makuuhuonetta. Taukovaunua voidaan käyttää rakennustyömailla, tapahtumissa ja festareilla, joissa tarvitaan yöpymismahdollisuutta. Edullinen ja loistava vaihtoehto myös väliaikaiseksi asuintaloksi. Vaunu on varustettu arkiasumiseen tarvittavilla varusteilla. Perävaunu on valmistettu sandwich-paneeleista, jotka ovat säänkestäviä, lämpimiä ja helppoja puhdistaa.

Tuotetunnus (SKU): 5MPS-G1W
Osastot: ,
Avainsanat tuotteelle , , ,
Tekniset tiedot
Merkki

Kärrymalli

Makuuvaunu

Malli

Tauko- ja makuuvaunu kahdelle, jossa ruokailutila, wc ja kaksi makuuhuonetta

Sisämitat

4980 x 2350 × (K)2200 mm

Kokonaismitat

6640 x 2320 x (K)2990 mm

Omamassa

1 260 kg

Kokonaismassa

1 600 kg

Akselit

Jarrut

Jarrullinen

Vakiovarusteet
  • Lattiassa 60 mm XPS lämpöeristys, PVC-pinnoite
  • Seinät lasikuitulaminaattia 50 mm XPS lämpöeristyksellä
  • Katto 55 mm, XPS lämpöeristyksellä
  • Vetoaisan nokkapyörän kantavuus 300 kg
  • LED-sisävalaistus kaikissa huoneissa
  • 4 kpl kulmatukia
  • Vaatehyllyt
  • Ilmastoidut huoneet
  • Tasapainotetut M+S renkaat
  • Perävaunun 400V sähköliitäntä
  • 25 m virtajohto
  • Vedenpitävät ovet kaksoistiivisteellä
  • ASSA lukot ja lukkokotelot
  • Kuumasinkityt portaat

TAUKOTILA:

  • Pöytä
  • 2 kpl tuoleja
  • Mikroaaltouuni
  • 2 kpl kaappeja
  • Jääkaappi
  • Ikkuna
  • Pesuallas

WC-HUONE:

  • Keraaminen wc-istuin
  • Pesuallas
  • Mini pumppu
  • Kattila

MAKUUHUONE:

  • 2 kpl sänkyjä
Toimitus & takuu

Rekisteröinti kuuluu aina kauppasummaan! Lähetä maksetusta laskustasi kuittikopio saadaksesi varmenteen peräkärryn omiin nimiin rekisteröintiä varten: myynti@trailertukku.fi

TOIMITUS

Nouto ja rahti: Tuotteet ovat Trailertukun omaisuutta, kunnes kauppahinta on maksettu kokonaisuudessaan. Noutotilaukset: Pyrimme luovuttamaan noutotuotteet asiakkaalle saman päivän aikana tai viimeistään seuraavana arkipäivänä. Viikonloppunoudoista sovitaan erikseen. Rahtilähetykset: Varastosta löytyvät tuotteet pyritään lähettämään 1–7 arkipäivän kuluessa tilauksesta. Pääkaupunkiseudulle ja Pirkkalaan toimitusaika on tyypillisesti 1–2 arkipäivää. Suomen suurimpana peräkärrykauppana tavoitteemme on, että kaikkia tuotteita löytyy suoraan varastosta. Tilaustuotteet ja poikkeukset: Tilaustuotteiden toimitusaika on 1–6 viikkoa. Mikäli tilattu tuote on poikkeuksellisesti päässyt loppumaan varastosta, ilmoitamme siitä asiakkaalle viipymättä. Maksutavat ja toimitusajankohta: Laskulla tilatut tuotteet toimitetaan vasta, kun suoritus näkyy järjestelmässämme. Sama käytäntö koskee rahoituksia (Resurs Bank, Santander-rahoitusta); toimitus prosessoidaan, kun rahoitussopimus on hyväksytty ja vahvistettu.

  • Nouto Maskusta, Espoosta ja Pirkkalan myymälästä 0,00 €
  • Rahtitoimitus (peräkärryt), riippuen sijainnista (lasketaan 0,8 € / km) verkkokauppaostoihin. Muuta kautta tehtyihin kauppoihin rahdotukset katsotaan aina erikseen.

Varaosat ja lisätarvikkeet

  • Toimituskulut alk. 15,00 € per tilaus (koosta riippuen)
  • Max. 30 kg (150 x 100 x 100 cm) tuotteet (Postnord palvelupiste) 15,00 €
  • Max. 35 kg (175 x 100 x 100 cm) tuotteet (Postnord MyPack Home) 25,00 €
  • 2kpl renkaita (Postnord MyPack Home) 30,00 €
  • 4kpl renkaita (Postnord MyPack Home) 60,00 €
  • Ajoramppiparit alle 300 cm (2kpl hinta) Postnord 50,00 €
  • Ajoramppiparit yli 300 cm (2kpl hinta) Postnord 150,00 €

TAKUU

Trailertukku Oy myöntää tuotteilleen 24 kuukauden takuun ostopäivästä lähtien. Takuu kattaa valmistus- ja materiaalivirheet, mutta sen voimassaolon ehdoton edellytys on tässä oppaassa annettujen käyttö- ja huolto-ohjeiden noudattaminen. Takuu ei kata tuotteen luonnollista kulumista, kuten jarrupalojen, renkaiden, polttimoiden tai vinssin kulumista käytössä. Valmistaja ei myöskään korvaa kuluja, jotka aiheutuvat perävaunun kuljettamisesta takuukorjaukseen. Toimintaohje vikatilanteessa: Mikäli havaitset tai epäilet tuotteessa takuun piiriin kuuluvaa vikaa, ota yhteys Trailertukkuun 3 arkipäivän kuluessa havainnosta. Perävaunua ei saa käyttää ennen kuin vika on korjattu. Trailertukku antaa tarkemmat ohjeet jatkotoimenpiteistä.
Yhteystiedot: Myynti | Puh: 040 510 8331 (myös WhatsApp) Sähköposti: myynti@trailertukku.fi

  • Takuuseen ei kuulu peräkärryn/trailerin tai kuluvien osien (esim. jarrupalat, renkaat, lamput, vinssi) luonnollinen kuluminen
  • Valmistaja ei korvaa kuluja, jotka aiheutuvat peräkärryn/trailerin kuljettamisesta takuukorjaukseen

RAHOITUKSET

Kauttamme saat Santander -ajoneuvorahoituksen, kysy lisää myyjiltämme 040 510 8331 tai myynti@trailertukku.fi Santander -ajoneuvorahoitus 60kk ajalla, korko 5,49%. Avausmaksu 249€ + käsittelymaksu 9€ / kk.

Resurs Bank -talo ja kotirahoitus 4000 € asti. Haluatko maksaa laskulla tai sinulle sopivissa erissä? Talo ja Koti -tilillä saat jopa 12 kuukautta korotonta maksuaikaa. Saat aina vähintään 30-60 päivää korotonta ja kulutonta maksuaikaa. Hae rahoitus helposti tästä. Tästä voit hakea 4000€ – 15 000€ väliltä rahoitusta!

CapitalBox tarjoaa yritysasiakkaille rahoitukset aina 20 000 € asti.  Ensimmäiset 30 päivää täysin kulutonta ja korotonta maksuaikaa. Koko rahoitukselle maksuajat ovat kuudesta kuukaudesta aina 36 kuukauteen sopimuksen mukaan. Ostorahoituksen kuukausikulu on 1,2%. Rahoituksessa ei ole avausmaksua, tilinhoitomaksua tai muita kuluja. Rahoituksen voi maksaa takaisin kokonaisuudessaan milloin vain, ilman lisäkustannuksia. Hae rahoitus tästä.

0,00

Pyydä tarjous!

  • Lisää numero muodossa +358501234567
  • Muistathan kirjata halutut lisävarusteet tähän kenttään!
  • Laita "täppä" sen toimipisteen kohdalle, joka on lähimpänä sinua tai josta toivoisit yhteydenoton tulevan.

Jopa 12 kuukautta korotonta maksuaikaa

Laske kk-maksu bottimme avulla ja jätä yhteydenottopyyntö! Laskuri laskee 60 kk Santander-rahoituksella ja rahoituslaskelma on suuntaa antava laskelma.

Ota yhteyttä

Arviot

Mitä pidit ostamastasi tuotteesta! Se kiinnostaa takuulla myös muita, jotka etsivät vastaavaa tuotetta. Kiitos jo etukäteen, että jaat arvokkaan mielipiteesi. Ennen julkaisua tarkistamme, että arvostelu täyttää tarkistusehtomme ja että se on aito.

Tuotearvioita ei vielä ole.

Kirjoita ensimmäinen arvio tuotteelle “ALRO taukovaunu 2:lla makuupaikalla (sis. wc + suihku + keittiö)”

Sähköpostiosoitettasi ei julkaista arvostelussa. Pakolliset kentät on merkitty *

Lähettämällä viestin hyväksyt ehtomme. Tutustu tietosuojaselosteeseen.